En la actualidad existe una gran variedad de instalaciones de las que se puede disponer, dependiendo de la zona geográfica donde se construyan las viviendas o de la calidad y el tipo de edificación; aunque hay una serie de instalaciones que van a estar presentes en todas ellas.
Aunque ya en la antigua Grecia existían sistemas de abastecimiento, potabilización y distribución de agua similares a los actuales, no fue hasta finales del siglo xix cuando se empezaron a utilizar tuberías metálicas de manera generalizada para abastecer a todas las viviendas. En el siglo xv, los árabes realizaron estudios sobre la electricidad de los rayos, pero no fue hasta finales del siglo xix cuando se pudo utilizar la electricidad para uso doméstico.
Las instalaciones características son las que se encuentran en todas las viviendas, ya que gracias a ellas disponemos de unas condiciones higiénicas y de salubridad adecuadas y nos proporcionan unas condiciones de vida más confortables. Además, permiten el funcionamiento del resto de las intalaciones.
1.1. Instalación de agua
Se encarga de proporcionar un caudal de agua en todos los puntos de consumo con una presión y una calidad del agua suficientes, y de evacuarla una vez haya sido utilizada. Dentro de esta instalación, podemos diferenciar dos redes que funcionan como instalaciones independientes:
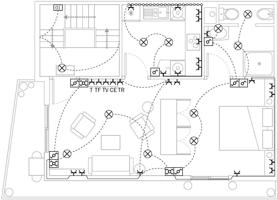
- Red de distribución: se compone de dos instalaciones de fontanería paralelas, una de agua fría (AF) y otra de agua caliente sanitaria (ACS).
- Red de saneamiento: está compuesta por tuberías de mayor diámetro que las anteriores y saca el agua de las viviendas tras su uso.

Figura 2.1. Ciclo del agua para consumo.
Agua fría (AF)
El agua que utilizamos en las viviendas proviene de ríos, lagos, pozos, etc. De ahí se canaliza a plantas de tratamiento para garantizar que la calidad sea adecuada para su consumo. Desde estas plantas, el agua es conducida por la red urbana hasta las viviendas.
Para introducir el agua en los edificios desde la red general se colocan una serie de elementos que forman la llamada acometida de agua. Esta acometida está formada principalmente por una tubería de enganche a la red general, que actualmente suele ser de polietileno, y por una arqueta de registro. A continuación, se dispone una llave de paso, que sirve para cortar el suministro en todo el edificio en caso necesario. Las tuberías en las viviendas se disponen empotradas en suelos o paredes, o en el interior de falsos techos. En la actualidad, las más utilizadas son de PVC.

Figura 2.2. Planta de tratamiento.
Agua caliente sanitaria (ACS)
El ACS alcanza unas temperaturas máximas de:
● Entre 55 y 60 ºC en el calentador.
● De aproximadamente 50 ºC en la red.
● Entre 40 y 45 ºC en los puntos de consumo.

Figura 2.3. Calentador central.
Su misión es preparar y distribuir el agua caliente desde unas unidades de preparación (calentadores) a los puntos de consumo.
La producción de agua caliente se puede realizar a través de dos sistemas: centralizado para todo el edificio o unitario para cada vivienda. En ambos casos, una de las tuberías de agua fría se deriva a un calentador, desde donde se distribuirá por una red paralela a la de agua fría hasta los puntos de consumo.
El ACS se puede preparar de las siguientes formas:
- De forma directa o instantánea: se genera al mismo tiempo que se produce la demanda y se suele utilizar en viviendas para producción individual.
- De forma indirecta o mediante un acumulador: su uso es más común para preparación de ACS centralizada, aunque también se emplea en los termos individuales.
Saneamiento
Esta red se encarga de recoger las aguas sucias a partir de unos puntos de desagüe y conducirlas hasta la red de alcantarillado, desde donde se llevarán a las estaciones depuradoras.
La red tiene que garantizar un cierre hidráulico a los espacios habitados, para evitar el paso de malos olores procedentes de la instalación. Este cierre se realiza mediante un sifón o un bote sifónico, que se consigue gracias a una retención permanente de agua.
Las aguas sucias las podemos separar en tres grupos, en función del punto de desagüe del que provengan:
● Negras: aguas residuales (inodoros y urinarios).
● Grises: aguas residuales (aparatos sanitarios de aseo y cocina).
● Blancas: aguas pluviales (sumideros de cubierta y canalones).
A no ser que la instalación de saneamiento se encuentre por debajo del nivel de la red general de alcantarillado, como en un sótano, funciona de dos maneras simultáneamente:
- Gravedad: debe existir una pendiente mínima del 2%, para evitar atascos, y máxima del 4%, para que la velocidad del agua no sea excesiva.
- A sección parcial: la tubería funciona con la presencia de aire dentro.
El aire, en estas instalaciones, es necesario porque retrasa la putrefacción de los residuos orgánicos y evita la rotura de los cierres hidráulicos, conocida como sifonamiento.

Figura 2.4. Instalaciones de AF, ACS y saneamiento.
- ¿Cuál es la función de la red de saneamiento? ¿Y de la red de agua caliente sanitaria?
- Averigua de qué forma se prepara el ACS en tu casa. ¿Crees que es la forma más adecuada?